下長者町通の京町家 (改修) | Kyomachiya on Shimochojamachi Street (Renovation)
<物件紹介>
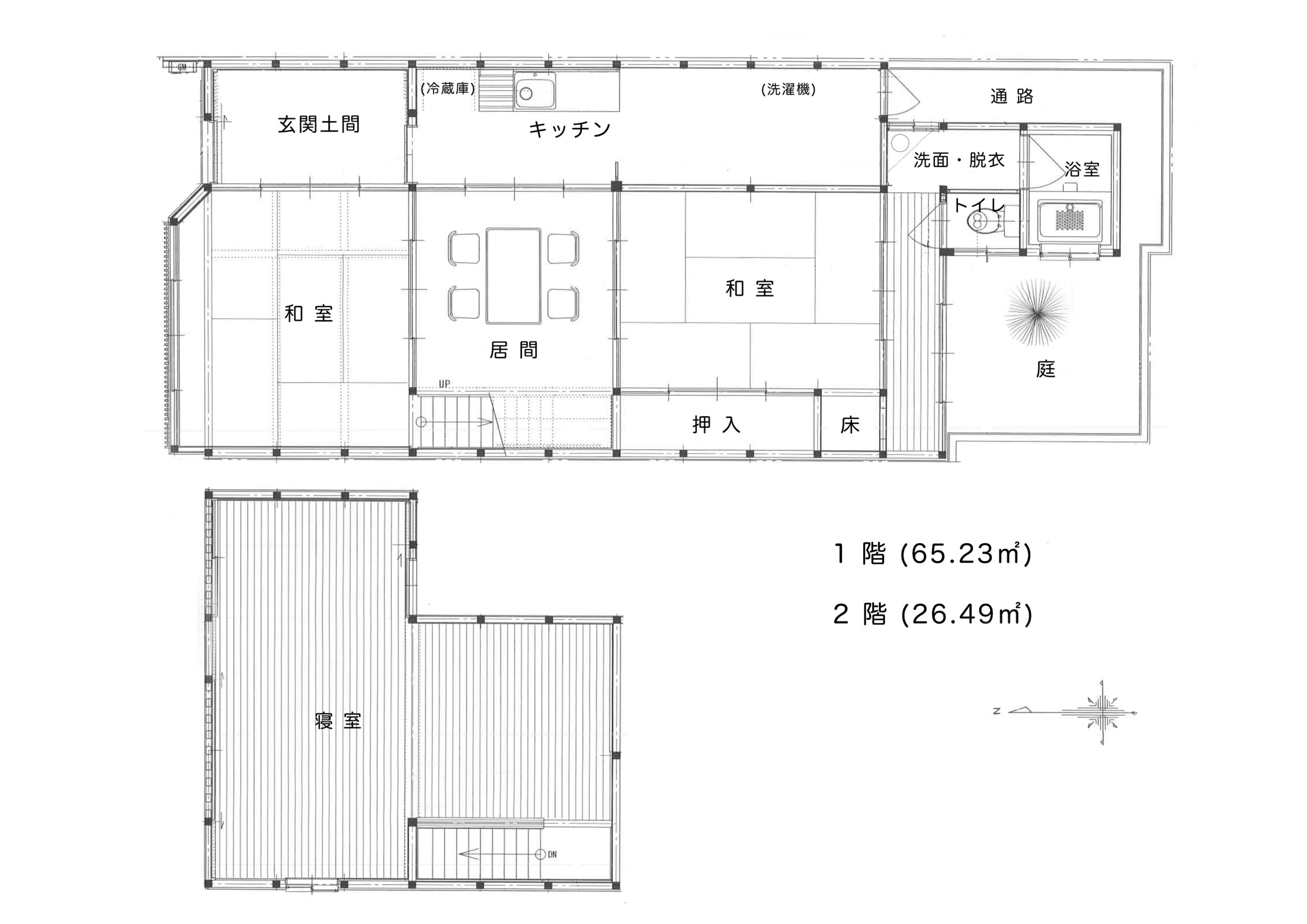
上京区西陣に残る、元箱屋さんの京町家。時代に合わせサイディングやアルミサッシに直されていた本物件は、町家本来の表情を取り戻すことを目的に改修を行った。木製の格子に硝子戸、厨子二階の虫籠窓は、京都の街並みが育んできた低く控えめな佇まいを一層落ち着かせる。玄関を開けると、奥の坪庭へ抜ける通り土間。奥行きのある空間に、台所上部の吹き抜けは、奥戸さんがあった当時のような解放感と空気の流れを感じられるのびやかな空間に。一階には京間サイズの六畳が二間。その間に板の間を挟むことで、生活に緩やかな区切りと余白を生み出している。二階は南北に勾配のついた天井を持つ空間。高さが抑えられたことにより生まれる安心感は厨子二階ならではの魅力を体現できる。坪庭には、冬でも葉を落とさないヤマコウバシを植樹。「落ちない」という縁起を担ぐ木として知られ、住まいに静かな願いを込めて。この坪庭は縁側からはもちろん、湯船に浸かりながら眺めることもできる。
- 建物情報 -
| 所 在 地 | 京都市上京区 |
| 構造規模 | 木造瓦葺平屋建 (厨子二階) |
| 延床面積 | 1F 65.23㎡ 2F 26.49㎡ (公簿) |
| 改修年月 | 2026年1月 |
| 用 途 | 住居、事業用他 |
| 施 工 | ミツワ産業 |














































